Jet Fans
Jet fans are a proven pollution-control and ventilation solution that induce airflow toward a common exhaust point using directional thrust. Widely adopted in parking garages worldwide, they are a cost-effective alternative to traditional, fully ducted systems.
Because jet fans do not require extensive ductwork, they reduce material and installation costs, free up headroom, simplify coordination, and improve service access and maintenance.
For reliable, high-efficiency jet fans in India, choose Marut Air—a leading manufacturer of jet fan systems.
Redefining Air Circulation with Marut Air
Marut Air’s jet fans optimize airflow for cleaner, safer enclosed spaces. As a leading Jet Fans Manufacturer in India, we design for high thrust with low sound levels, streamlined installation, and dependable life-cycle performance. Contact us to explore the best configuration for your project.
Features
- Dual use: daily ventilation and smoke extraction in case of fire (300 °C / 120 min).
- Symmetrical aerodynamic blades for high thrust with low sound.
- Motors IP55; insulation Class H (smoke extract) / Class F (CO-exhaust) per EN 60034-5 / IEC 85.
- Galvanized steel casing.
- Conforms to EN 12101-3 (300 °C for 120 min / 2 hrs).
- Fan sizes: 315, 355, 400 mm diameter.
Basement
basement
| Jet Fan Model | Mode | Air Volume | Thrust | Noise Level | Motor | Motor Pole | Motor Protection | Phase | Insulation | Weight (Kg) |
|---|---|---|---|---|---|---|---|---|---|---|
| CMH | N | dB(A) @ 3m | (kW) | Nos. | Kg | |||||
| MJT-315UD | Normal | 2325 | 6.5 | 50 | 0.18 | 4 | IP55 | 3 | H | 60 |
| Fire | 4650 | 25 | 64 | 0.75 | 2 | |||||
| MJT-355UD | Normal | 3500 | 11 | 52 | 0.37 | 4 | IP55 | 3 | H | 75 |
| Fire | 7000 | 45 | 65 | 1.50 | 2 | |||||
| MJT-400UD | Normal | 5250 | 20 | 54 | 0.40 | 4 | IP55 | 3 | H | 90 |
| Fire | 10500 | 80 | 68 | 2.20 | 2 | |||||
| MJT-450UD | Normal | 6750 | 26 | 55 | 0.55 | 4 | IP55 | 3 | H | 100 |
| Fire | 13500 | 104 | 69 | 3.70 | 2 |
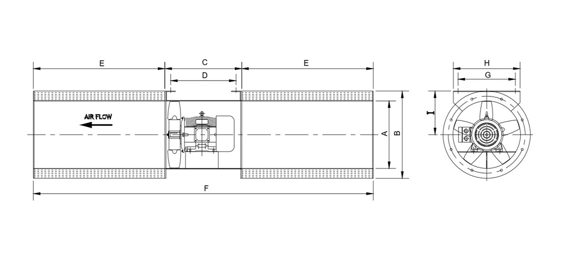
| Model | A | B | C | D | E | F | G | H | I |
|---|---|---|---|---|---|---|---|---|---|
| MJT-315 | 320 | 420 | 340 | 290 | 630 | 1600 | 270 | 320 | 214 |
| MJT-355 | 360 | 460 | 400 | 350 | 700 | 1800 | 300 | 350 | 234 |
| MJT-400 | 405 | 505 | 440 | 390 | 800 | 2040 | 330 | 380 | 256 |
| MJT-450 | 455 | 555 | 470 | 420 | 900 | 2270 | 350 | 400 | 262 |
| Distance From Nozzle (m) | 4 | 8 | 12 | 16 | 20 | 24 | 28 | 32 | 36 | 40 | 44 | 50 | |
|---|---|---|---|---|---|---|---|---|---|---|---|---|---|
| Flow Width (m) | 1.6 | 3.3 | 4.9 | 6.7 | 8.4 | 10.0 | 11.8 | 13.5 | 15.2 | 17.0 | 18.5 | 20.8 | |
| Center Line Velocity (m/s) | MJT-355 | 4.4 | 2.4 | 1.6 | 1.4 | 1.2 | 1.0 | 0.5 | 0.25 | ||||
| MJT-400 | 5.3 | 2.9 | 2.0 | 1.5 | 1.2 | 1.0 | 0.9 | 0.65 | 0.45 | 0.26 | 0.12 | ||
| MJT-450 | 6.5 | 4.5 | 3.0 | 2.4 | 2.0 | 1.8 | 1.4 | 1.2 | 1.0 | 0.8 | 0.6 | 0.2 | |